
concurso sesc galeria
em colaboração com clube, lanza atelier e camila medeiros
proposta não selecionada
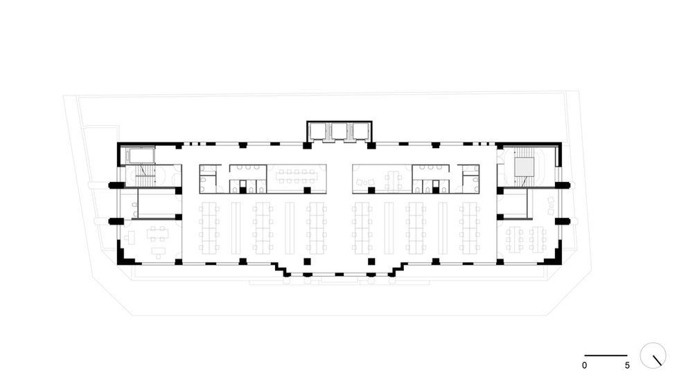
O partido do projeto para o novo SESC Galeria resulta de uma reflexão sobre dois aspectos primordiais do edifício: a circulação vertical e a distribuição do programa. A circulação vertical almeja ser a mais compacta e eficiente possível. No miolo da planta, são propostos cinco elevadores com capacidade para 18 passageiros cada. Enquanto os três elevadores centrais aproveitam a torre de circulação existente e alimentam a totalidade dos pavimentos, os das extremidades se restringem ao embasamento, onde há uma presença maior de público. Esse artifício, além de permitir maior mobilidade sem qualquer alteração de fachada, cria uma situação na qual a faixa longitudinal posterior do edifício se converte em uma área de apoio para os programas do térreo ao sexto pavimento, abrigando sanitários, depósitos e salas de reunião. Assim, a porção principal das lajes é liberada para um uso mais livre. A torre central de circulação é complementada por duas outras prumadas verticais contendo escadas de segurança contra incêndio. Enquanto a primeira se apresenta como uma escada convencional acompanhada de um elevador de carga com medidas internas de 2,70x1,60m – suficientes, por exemplo, para transportar um piano de cauda –, a segunda possui um desenho mais generoso e suas portas, equipadas com dispositivos de fechamento automático, permanecem sempre abertas, estimulando o uso do público. O objetivo é criar uma comunicação mais livre e independente entre os pavimentos, recurso especialmente atrativo quando estes apresentam programas complementares.
A organização do programa deriva tanto da leitura das características do edifício, como da interpretação das demandas do edital. Sua distribuição segue um critério claro, segundo o qual as áreas com maior intensidade de público são locadas no embasamento, relegando à torre aquelas de uso restrito ou esporádico – salvo raras exceções. O subsolo, em sua especificidade, é utilizado como área técnica. A primeira justificativa para esse esquema se ancora na solução adotada para a circulação vertical, que conta com um número maior de elevadores até o sexto pavimento, permitindo o melhor atendimento de usos movimentados como a comedoria e o auditório. Contribui igualmente para essa divisão a generosidade dos pisos do embasamento em termos de área e pé-direito, possibilitando ali a inserção de programas mais amplos como a comedoria ou a biblioteca. A isso se soma o desejo de criar uma relação próxima entre os locais de público e o térreo da cidade, que se amplifica com a generosidade dos caixilhos existentes nos andares inferiores. A decisão de colocar o café e a loja juntos à rua – à semelhança das galerias comerciais do centro de São Paulo –, ou a utilização do primeiro pavimento como uma espécie de sobreloja, são alguns exemplos dessa relação com o entorno imediato. Outra correspondência interessante decorre do posicionamento do foyer do auditório no andar avarandado que olha para o teatro municipal, dando origem a uma conexão visual que, simbolicamente, comunica dois palcos distintos. Este jogo de simetrias e espelhamentos extrapola a implantação urbana, marcada pela condição de frontalidade com o teatro, sendo rebatido na própria relação entre o edifício original e a intervenção proposta.
Para além da diferenciação entre o embasamento e a torre, há também um esforço de estabelecer relações espaciais e programáticas entre pavimentos adjacentes. Sobrepostos, usos complementares se interligam, como por exemplo as edições e a biblioteca. A comunicação entre os pisos pode tanto ocorrer por meio das aberturas perimetrais junto à fachada principal, criando jogos de altura e pé-direito duplos, como através dos vazios centrais a exemplo da comedoria, cujo teto é o verso da plateia do auditório. Estes vazios aparecem analogamente na torre, cuja ocupação foi organizada pelo agrupamento de programas com demandas similares, permitindo uma composição conjunta que por vezes extrapola os limites dos andares. Com exceção dos recortes localizados nas lajes e do vazio do auditório, que exige a remoção de duas vigas transversais com o auxílio de reforços, a estrutura original permanece praticamente intocada.
Em linhas gerais, o projeto se caracteriza por uma intervenção funcional no edifício existente, sem, entretanto, abrir mão de recursos lúdicos, ativados principalmente pelo mobiliário e pelos vazios. A plena organização da circulação e do programa em um edifício histórico, somada a um cuidado com sua inserção urbana, proporcionará uma sede viva e pulsante para o SESC enquanto instituição.

ficha técnica
status | proposta não selecionada
projeto | 2025
localização | são paulo, sp
equipe | Alejandra Richard,
Alessandro Arienzo,
Camila Medeiros,
Gabriel Biselli,
Genevieve Parkes,
Isabel Abascal,
Tomás Millan,
Victor Oliveira,
Yven Dellemann.






















